HORSE TRADE VENUE TECH SPECS

Rental Procedure
Fireguard Information

Light Board Manual
(
for all 3 Spaces )
Dimmer Manual
(
for all 3 Spaces )
rr
USM

General Info

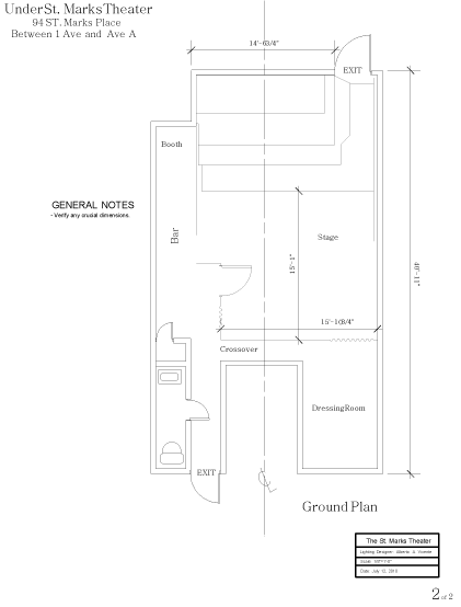
Ground Plan

Lighting Plot

 


General Info

Ground Plan

Lighting Plot

 

General Info

Ground Plan

Lighting Plot


Tech Incident Report
t